Villa Elam
This family villa project is located in the Bay of Maslinica on the Island of Šolta. The Bay of Maslinica is a beautiful vista of an olive tree landscape with a pine tree forest, hidden pebble beaches and picturesque stone houses.
The land parcel is located on a promenade along the sea and has a 180° view of the bay. There is an existing family home on the land parcel that is being removed.
The Scandinavian investor from Stockholm is a family with high aesthetic demands. They have chosen a combination of traditional Mediterranean materials and contemporary architecture.
The project concept uses and emphasizes the quality features of the context, such as the property's orientation to the south, view of the sea, mild Mediterranean climate ideal for spending time outdoors, stone building heritage and autochthonous vegetation. At the same time, the concept alleviates the negative sides of the surrounding, such as the sloped terrain that limits its use, strong bura wind and the summer sun, as well as exposure to views from the neighbourhood.
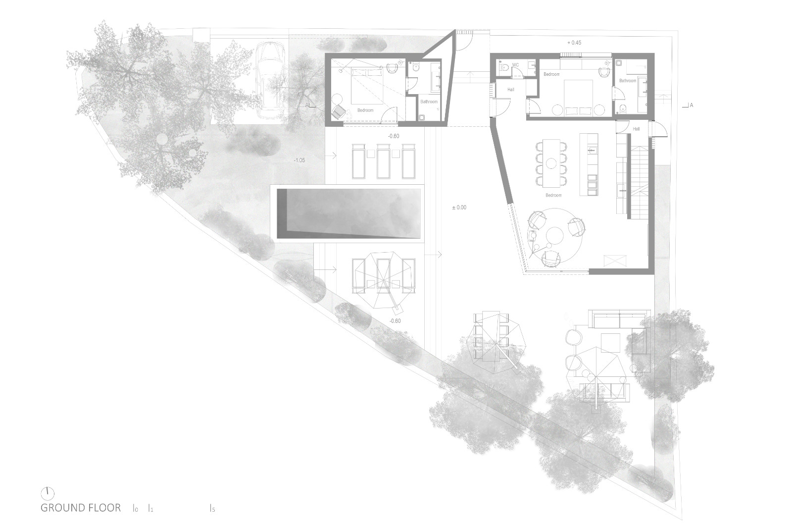
There are two buildings on the land parcel. One is a two-storey building – a family house, and the other is a ground-level building – a studio apartment. Both buildings express the need for a simple volume and avoid unnecessary enhancement of the overall design. They are realised as compact closed polyhedrons, strong volumes covered by the same material on all sides.
The buildings, with their positioning on the land parcel, form a semi-open internal yard with terraces and an outdoor swimming pool. The project provides for the implementation of smart home system segments according to the users' wishes and needs, use of alternative sources of energy and implementation of superb materials, equipment, woodwork and ironmongery.
An important part of the project is also the interior project with as much emphasis placed on it as on the architectural design thereby achieving the maximum compatibility of harmonies of the architectural language, both indoor and outdoor.









