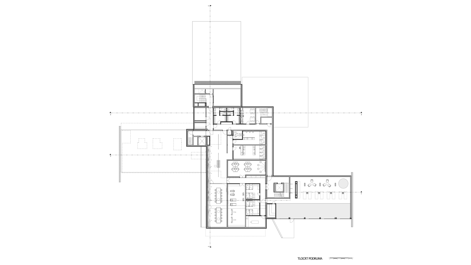
Reconstruction of the hotel Bellevue, Plitvice Lakes
The forest and the book form a natural harmony; not only is paper made of wood, but both evoke thoughts, emotions, and peace in man.
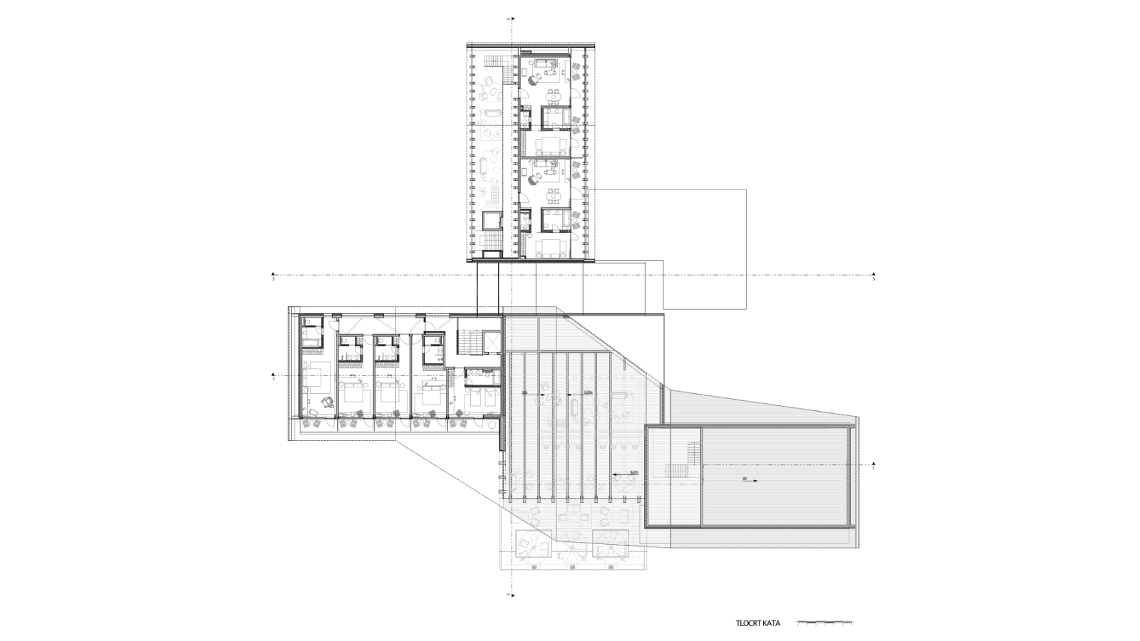
The entrance area is designed as a transparent glass volume, "Cube", which forms an elegant spatial clasp between the main building with two accommodation wings and a restaurant, and the third accommodation building. This glass Cube in its conceptual, conceptual sense is a fragment of the water volume of Plitvice Lake.
The north, detached wing called Barn is shaped as a contemporary interpretation of a forest hut. By treating the façade with vertical wooden lamellas on both sides of the façade, it is just reminiscing the facades of forest farm buildings.
The two accommodation wings, the western Lutra-Lutra and the eastern Forest and the central area of the restaurant, bar and lounge, Mrs Slipper, are united by a unique roof of broken geometry that evokes the traditional sloping roof of the region, made of steel also in the tradition of this area.
The restaurant, bar and lounge is named Mrs. Slipper after a protected flower that grows on Plitvice Lakes and is one of the most beautiful orchids in Europe.
Upon entering the representative two-story space of the restaurant and lounge bar, the guest is greeted by the sensational open view of Lake Kozjak.
The space overflows from the inside to the outside, into nature, through a rich wooden ceiling and a glass facade.
Such an organic architectural construction, which transforms from an external to an internal, from a general construction into an individual internal detail, is metaphorically like a large tree that with its roots, trunk and branches carries a handful of tiny leaves.
In each space of this hotel, the guest is offered an intimate, social, functional and aesthetic component, with maximum permeation with the unique and unrepeatable natural beauties of Plitvice Lakes.













