Boutique Hotel Briig, Split
The Hotel Briig on Bačvice was conceptualised as an urban city hotel that recognizes the beautiful cove as a lovely natural context, but that is also oriented towards the city's cultural contents. The wish was for it to, in addition to the hotel guests, also accommodate other users providing them with an attractive and pleasant ambiance.
The hotel building is positioned within a luscious park, a strong and attractive green area as the hotel builds its identity through its relationship with it.
The shape of the hotel is a slightly fractured cube, like someone “sat on it“, resulting in an irregularly fractured facade making it three-dimensional and giving plasticity to the external surface. The white coloured front side has a finishing layer that gives it a greasy effect allowing the view and light to smoothly slide along the surface. Large triangle-shaped fractures on the facade give the illusion of white sails providing this massive building with a slightly fluttery character.
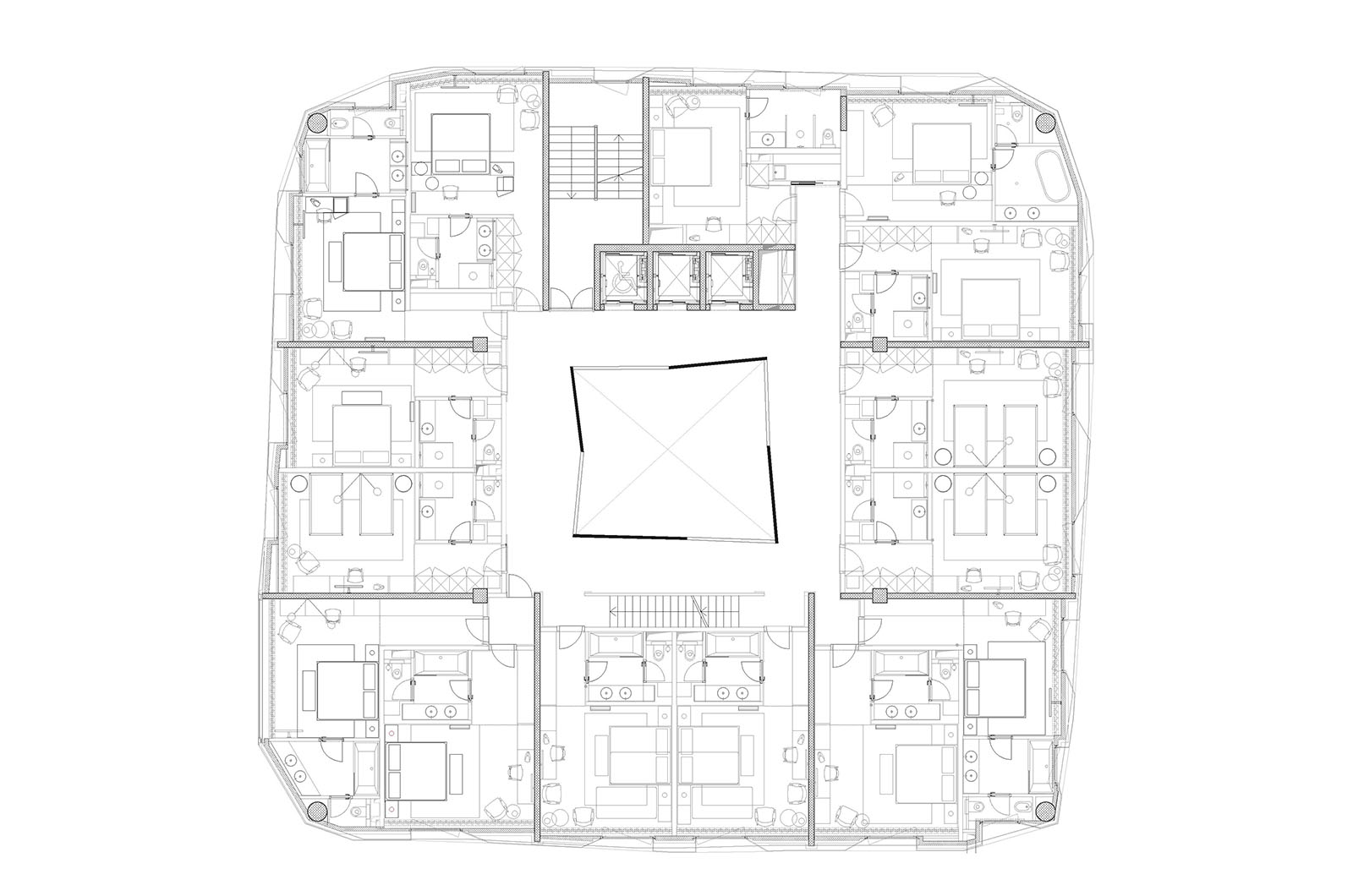
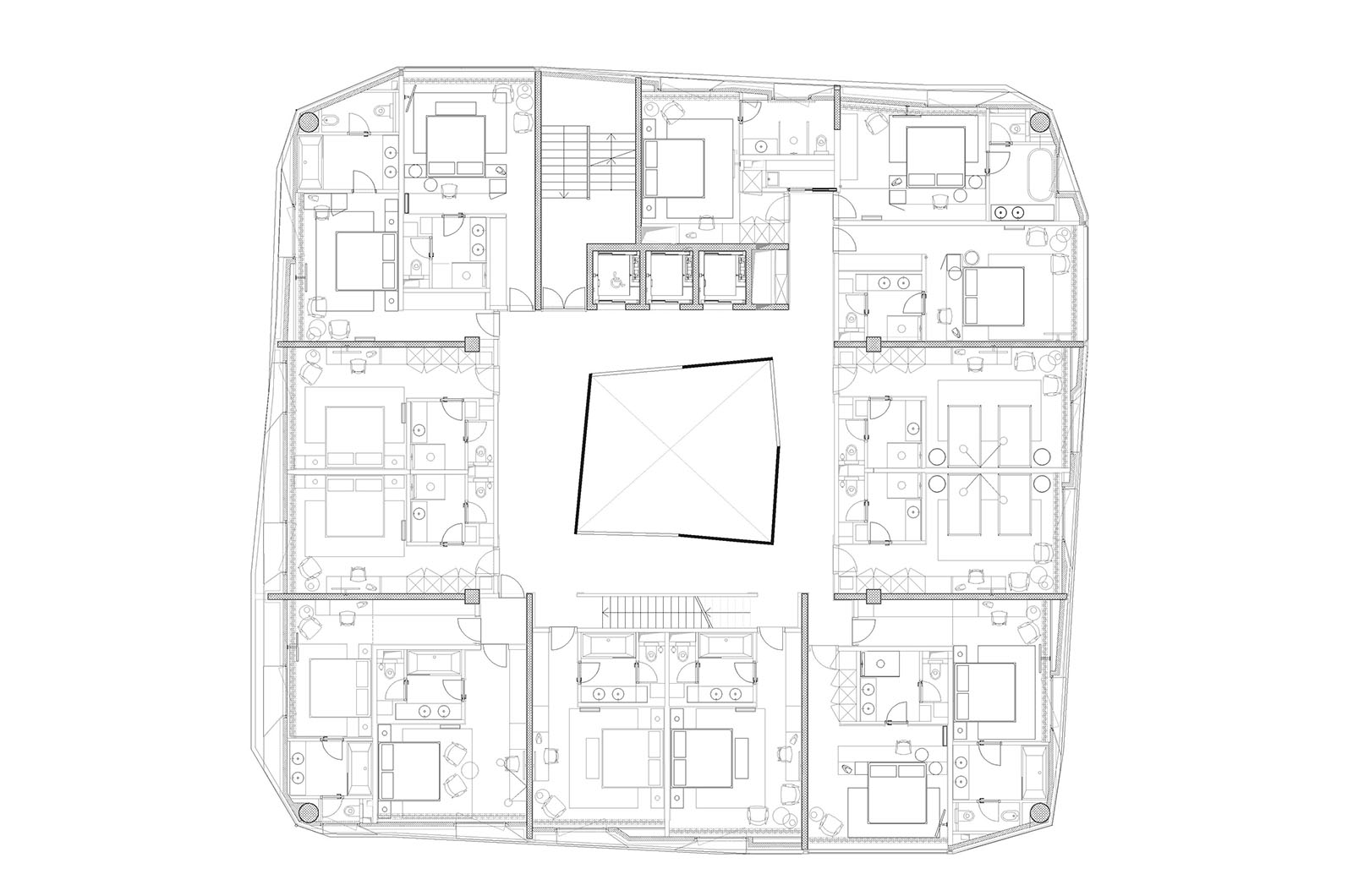
There is a vertical atrium in the hotel interior that dominates the central space and reflects the external facade with its fractured surface. The inspiration for this atrium shape was the great Japanese artist Noguchi and his famous fractured paper lamp. The internal atrium ends with a glass roof plate that is an opening towards the sky and the source of natural light giving a slightly spiritual character to the entire space.
Impressive steel stairs with a semi-matte finish spiral towards the first floor and connect the ground floor with the galleries emphasizing the contrast between the white angular surface and the black round form. An intriguing entrance area with a reception is located on the ground floor along with a comfortable living room featuring selected Scandinavian classic design furniture pieces from the middle of the 20th century. There is also a central bar coated with fine-grain pebbles with illuminating ceiling panels shaped as sails and a luxury restaurant with a floor made of 14 types of various marbles put together creating a unique collage.
There is a luxury congress centre on the -1 level shaped in strong geometry and made of warm oak wood. There is an elegant round glass tholobate in front of the congress hall that brings digression into the space with its crystal airiness and rounded form, within the same theme as the circle of the round stairwell in the atrium. There is a terrace with a swimming pool on the hotel's superstructure that blends into the sky. The furniture and the wall cladding in the rooms were custom designed using precious light oak. The conceptual connection between the architecture and modernism from the 1950s and the 1960s is emphasized through the selection of artworks from the time of iconic Gorgona and Exat with artists such as Knifer, Jevšovar, Demur, Srnec, Bućan...
The Hotel Briig is a modern building that belongs to tradition, but tradition of the bold and modern architecture Split used to have.




































